Page 1 sur 1
[WIP] Borne Home Made
Publié : 07 avr. 2021 - 05:27
par Renotor
Bonjour,
Voila comme dit dans ma presentation, je vous presente mon projet:
Donc Borne pour 2P, de plein pieds avec Pi4 & recalbox.
De mon cote, j ai deja un peu tout chiffré. J'ai fait la commande d'une partie de l'electronique et la je suis sur les plans de la borne en elle meme.

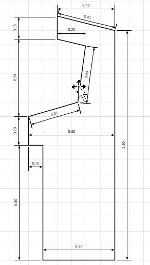
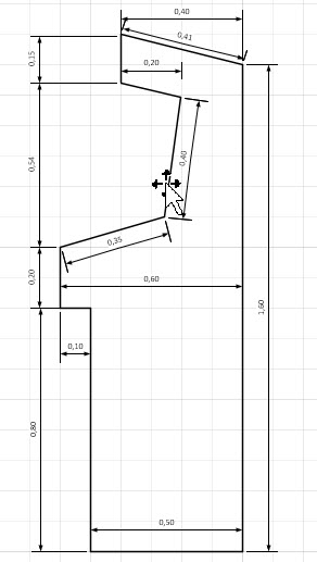
- Side.jpg (24.37 Kio) Consulté 1746 fois
Donc deja savoir si vous trouver les tailles logiques ou pas? Je me suis inspiré de differents plans glané ici ou la...
La forme je vais la jouer assez basique peut etre insere quelques arrondis histoire de faire plus fini.
J attends votre retour...
Re: [WIP] Borne Home Made
Publié : 07 avr. 2021 - 07:22
par Renotor
Le panel:
S= Save
L= Load
H= Hotkey
Prevoir un bouton de reglage rapide pour la resolution?
Le positionnement est il bon selon vous?

- Panel.jpg (64.66 Kio) Consulté 1739 fois
La suite
Re: [WIP] Borne Home Made
Publié : 07 avr. 2021 - 10:03
par gui_2009
Hello et bienvenue !
Pour ton panel, tu peux vérifier la cohérence de position des boutons avec ce site :
https://www.slagcoin.com/joystick.html
On y retrouve par exemple les cotes des panel SEGA, au top pour moi
Après, question toute bête, mais 8 boutons par joueur ? Il y a finalement assez peu de jeux qui demandent 8 boutons non ?Bon
Bon WIP !
Re: [WIP] Borne Home Made
Publié : 07 avr. 2021 - 16:19
par Renotor
Plop,
oui je me suis servi de ce site pour le layer

merci quand meme pour le lien!
Oui 8 boutons car je veux pas etre pris de court sur certains jeux meme si je sais qu'il y en a peu qui utilise les 8....
++
Re: [WIP] Borne Home Made
Publié : 07 avr. 2021 - 18:58
par arnodaro
Salut, certains te renseigneront mieux que moi et je peux me tromper mais il me semble que sur recalbox c'est un combo de boutons pour sauvegarder et charger une partie:
H+Y et H+X
tes boutons S et L sont donc de trop.
Par contre les shaders sont affichables avec L2 ou R2 je ne sais plus lequel, donc tu peux prévoir un bouton.
Pour le panel 2x8 je pense également que ça ne te servira pas beaucoup.
Bon bricolage !
Re: [WIP] Borne Home Made
Publié : 07 avr. 2021 - 19:38
par Irus1980
Salut,
Franchement 8 boutons joueurs c'est minimum 2 de trop pour moi !
les jeux qui vont demander du 8 boutons tu vas avoir les PS, PSP surement, je te conseil plutôt d'acheter une manette USB pour les jeux à plus de 6 boutons
Moi je suis partie sur 6 pour l'esthétique mais au final tu en utilise bien moins !
Moi je dis 2x START 2xSELECT 1xHOTKEY et 2x6 BOUTONS JOUEURS et 2 JOY et hop
A toi de voir, si tu a déjà les boutons fait toi des gabarits en carton pour voir les placements et ce que cela donne
@+
Re: [WIP] Borne Home Made
Publié : 07 avr. 2021 - 20:01
par camarade35
Salut, alors comme les collègues.
Vu que tu seras sur RecalBox, 6 boutons par joueurs, 1 Start par player, 1 seul insert coin qui servira aussi de HotKey cela devrait suffire.
Sinon, attention PI4, je ne sais pas si ça changé mais beaucoup parle de surchauffe, un PI3B+ fait largement le taf
Tu peux voir ma N'Styl (
https://docs.google.com/document/d/104o ... ckDiw/edit)qui est en 4 boutons + 3 sur un RPI (mais sur CRT ^^) mais si par la suite tu veux mettre un PC, oui dans ce cas, 6x2 + 4 + 1
Re: [WIP] Borne Home Made
Publié : 07 avr. 2021 - 23:20
par quaiquaike
Bon courage a toi, c'est une super aventure que de faire sa borne, effectivement ici trouvera toute l'aide dont tu as besoin.Je confirme 6 boutons par joueur + 1 select + 1 start +1 hotkey c'est nickel, car sur une borne tu joue aux jeux arcade, cela reste dans l'esprit, quand tu as connu les jeux sur console, c'est bizarre d'y jouer sur borne.Pour le pi4 les problèmes de surchauffe on été corrigés, mais le mieux reste d'y ajouter un dissipateur avec un petit ventilo, de toute façon dans la borne ça ne s'entend pas.
Re: [WIP] Borne Home Made
Publié : 10 avr. 2021 - 11:39
par Renotor
Plop,
Desole reponse un peu tardive, mais fallait que je bosse aussi un peu
donc pour resumé sur le panel:
Player 1:
Joystick
6 boutons
1 start
1 select
Player 2:
idem
commun aux deux:
1 coin
1 hotkey
Concernant les consoles que je pense emuler sont les suivantes:
MAME
Master system / Megadrive
NES / Super Nes
Neo Geo?
apres a voir je me suis pas encore trop penché la dessus...
Sinon oui j ai prevu une boite avec ventilo pour le PI4.
++
Re: [WIP] Borne Home Made
Publié : 10 avr. 2021 - 14:18
par arnodaro
salut, neogeo est à mettre c'est de l'arcade pur et dur ! quelques jeux consoles passent très bien en mode panel arcade:
-les shmups
-les beat em up
-les vs fighting
-certains puzzle games (lumines, tetris par exemple)
Si tu restes sur de l'arcade, fais toi un petit tri des jeux consoles à rajouter
Sinon tu rajoutes un port usb et tu branches ta manette si nécessaire
Si tu mets 2 select pas besoin de rajouter un coin juste hotkey
Re: [WIP] Borne Home Made
Publié : 11 avr. 2021 - 11:37
par Fat Cat Factory
Hello'
Hormis Mame que je n'ai pas encore essayé, aucun souci pour émulé le reste avec une petite framboise. Selon moi le Stick est parfait pour les consoles qui se joue à la croix directionnel peu importe le style de jeu. Si jamais tu as besoin d'un coup de main n'hésite pas à MP.
Niveau panel, ça tient avec 8 boutons J1 et 7 J2. La touche select aura plusieurs rôles.
- Hotkey si tu appui simultanément dessus avec une autre touche
- Select sur les jeux consoles
- Crédit sur les jeux arcade
Je viens de finir la modélisation d'un rack pour pi4 avec deux ventilo de 30mm si jamais tu possède une imprimante 3D.
Re: [WIP] Borne Home Made
Publié : 29 avr. 2021 - 05:41
par Renotor
Plop plop,
Me suis fait un peu silencieux c est dernier temps, mais le projet a fait un grand pas en avant! Voir ci dessous !
Me manque l alim du pi et surtout le câble mini HDMI qui ne sont toujours pas reçu...(Al...presse) et partie électronique complètement reçu.
La je suis sur le panel le reste juste à faire les trous pour les boutons "extra"...
Re: [WIP] Borne Home Made
Publié : 05 mai 2021 - 08:48
par Renotor
Plop a tous!
Bon ca y est monté car fallait tester

demontage prevu semaine prochaine, avec quelques modif a prevoir pour fiabiliser et surtout renforcé certains elements...
a rajouter: tasseau superieur pour renforcer le panel...eh oui les garcons de 10ans ca tappe fort...
abaisser le panel de 4mm pour inserer un "sandwich" plexy - vynil - plexi.
Attaquer la fixation du marquee, et enfin acheter la planche pour la porte...et apres avec madame on s attaque au finition et a la peinture....!!!
Re: [WIP] Borne Home Made
Publié : 05 mai 2021 - 08:56
par Rico62
Bonjour
Tres bon debut , pouvez vous me donner la section de vos tasseaux et la dimention de vos vis?
Pourquoi faire un sandwich de plexi et non mdf sticker plexi?
Merci a+
Re: [WIP] Borne Home Made
Publié : 05 mai 2021 - 12:24
par arnodaro
ça bricole ici ...cool
je ne comprends pas pourquoi le sandwitch moi aussi. Situ prends mdf 19 mm stickers et plexi par dessus je te garantis que ça sera solide et peut être moins galère que de percer 2 fois du plexi.
La traverse au dessus du panel c'est pour le maintient provisoire?
@Rico62 les tasseaux tu prends ce que tu veux (22x22 ça suffit généralement pour du mdf en 19mm), pour les visses tu calcules tasseau+épaisseur mdf et tu fait en sorte que la visse soit plus courte si tu visses par l'intérieur.
19mm mdf+ 22mm tasseau= 41mm
tu prends des visses en 4x35 ,si t'es inquiet tu rajoute de la colle à bois.
Re: [WIP] Borne Home Made
Publié : 06 mai 2021 - 07:00
par Renotor
Yop!
Alors effet sandwich plexi ce est a cause du panel car pour l installation des joysticks, je les ai fixe par dessus et non par dessous. Du coup pour que ça fasse propre lors de l installation des stickers je suis obligé de mettre une sous couche...
Concernant le tasseau il sera sous le panel (10mm) car la finesse et les enfants ça a donné un panel qui flambe. Du coup un renfort sur la partie supérieure et peut être une epontille au centre et on pourra sauter à pied joint dessus...désolé je suis marin donc les termes spécifique et la tendance a surdimensionné le matos...
Re: [WIP] Borne Home Made
Publié : 06 mai 2021 - 07:02
par Renotor
Ah oui la traverse au dessus du panel ce était pour la fixation de l ecran...j' ai fait une bêtise y avait une offre sur un 27pouces et selon leur descriptif il devait faire moins de 60 (largeur de ma borne en interne). Malheureusement il fait 61...donc lors du démontage je vais regarder ce que je peux faire pour l ecran... Car je voudrait bien qu il soit a l intérieur...
Re: [WIP] Borne Home Made
Publié : 06 mai 2021 - 07:31
par arnodaro
en enlevant le cadre de l'écran ça passera normalement si il n'y a qu'un cm à récupérer.
Re: [WIP] Borne Home Made
Publié : 06 mai 2021 - 17:12
par Renotor
Cool, top merci je vais regarder...sinon j étais parti sur enlever 0,5cm sur chaque bord et de le faire a l defonceuse...